Townhome - Rating 4.6 (23)

Settlers Creek 6565


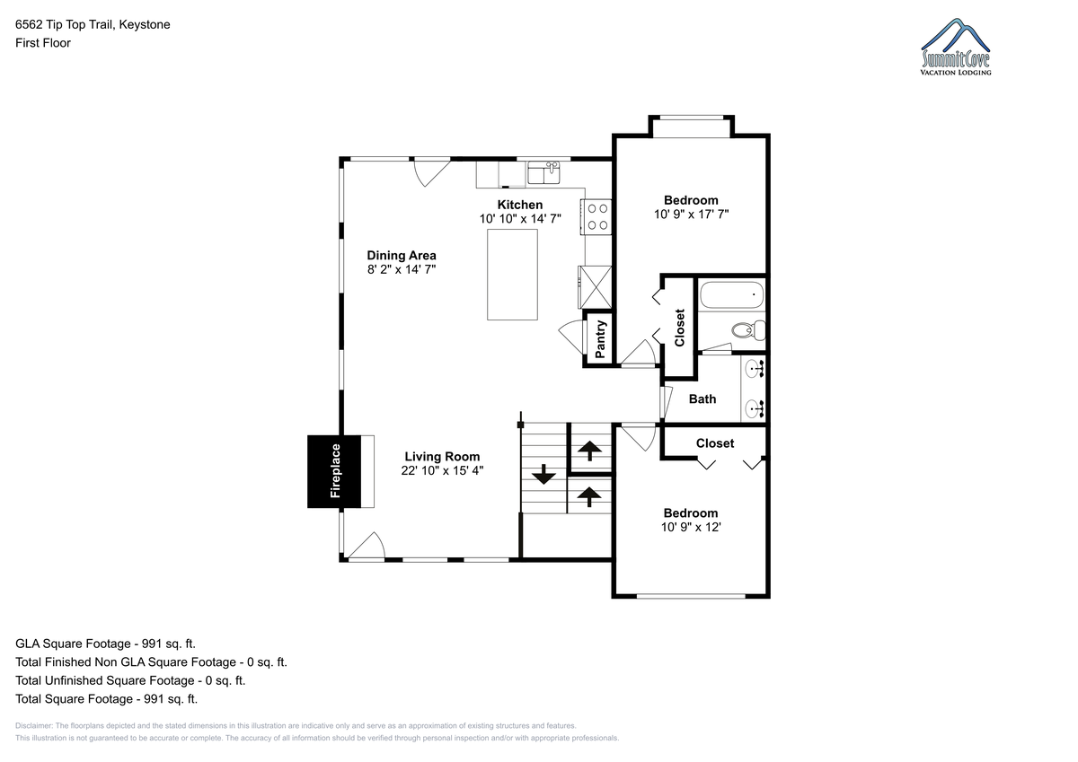
Bedroom 4 bedrooms
Bathroom 3 baths
Guests 11 guests
Number of Floors inside Property: Number of Floors Inside Property: 3
Floor in Building 1st Floor of Building
Pets Not Allowed Pets Not Allowed
No Smoking No Smoking

Description Description
Escape to the beautiful Rocky Mountains of Colorado with your friends and family in Settlers Creek 6565, a luxurious vacation condo. Nestled in the heart of East Keystone, this 4 bedroom, 3 bath townhome boasts all the modern amenities and breathtaking views that you could ask for in a mountain getaway.

As you step inside, you'll immediately feel the warmth and comfort of a true home-away-from-home. From the tasteful decor to the inviting furnishings, every detail has been lovingly hand-picked to create a space that is as comfortable as it is elegant. The living room is spacious and cozy, with a comfortable sofa and armchairs perfect for curling up with a good book or enjoying a movie night with your loved ones.

The townhome features a fully-equipped, updated kitchen that is perfect for cooking up your favorite meals. Whether you're an experienced chef or just starting out, you'll have everything you need to whip up a delicious feast for your family and friends. The dining area is adjacent to the kitchen, providing plenty of space for everyone to gather and enjoy a home-cooked meal together.

The four tastefully appointed bedrooms are the perfect place to unwind after a day of outdoor adventures. With comfortable beds, luxurious linens, and plenty of space to stretch out, you'll wake up feeling rested and rejuvenated each morning.

One of the best things about this vacation condo is the location. Nestled in East Keystone with beautiful views, you're only a mile to the River Run Village for skiing, dining and shopping.

The free shuttle is a short walk from this property and the ride to the slopes is a quick one. With easy access to all the area's best attractions, you'll have plenty of opportunities to explore the best of Colorado.

But the fun doesn't end when the snow melts. The area is home to some of the best hiking, biking, and fishing in the state, as well as plenty of opportunities for golfing, shopping, and dining. Whatever your interests, you're sure to find plenty of things to keep you entertained when you stay at this luxurious mountain retreat. You'll also have access to a guest clubhouse, outdoor pool, and hot tubs so everyone in your group will love staying at this amazing property!

So if you're looking for a perfect mountain getaway for your next vacation, look no further than this stunning townhome in Keystone. With its luxurious amenities, unbeatable location, and breathtaking views, you're sure to fall in love with this wonderful Colorado gem.

This property has a 2-car garage and parking for two vehicles in front of the garage.

Location Location

Availability Calendar Availability Calendar
1 Available
1 Unavailable
May 2026
Su Mo Tu We Th Fr Sa
          1 2
3 4 5 6 7 8 9
10 11 12 13 14 15 16
17 18 19 20 21 22 23
24 25 26 27 28 29 30
31            
June 2026
Su Mo Tu We Th Fr Sa
  1 2 3 4 5 6
7 8 9 10 11 12 13
14 15 16 17 18 19 20
21 22 23 24 25 26 27
28 29 30        
July 2026
Su Mo Tu We Th Fr Sa
      1 2 3 4
5 6 7 8 9 10 11
12 13 14 15 16 17 18
19 20 21 22 23 24 25
26 27 28 29 30 31  
August 2026
Su Mo Tu We Th Fr Sa
            1
2 3 4 5 6 7 8
9 10 11 12 13 14 15
16 17 18 19 20 21 22
23 24 25 26 27 28 29
30 31          
September 2026
Su Mo Tu We Th Fr Sa
    1 2 3 4 5
6 7 8 9 10 11 12
13 14 15 16 17 18 19
20 21 22 23 24 25 26
27 28 29 30      
October 2026
Su Mo Tu We Th Fr Sa
        1 2 3
4 5 6 7 8 9 10
11 12 13 14 15 16 17
18 19 20 21 22 23 24
25 26 27 28 29 30 31
November 2026
Su Mo Tu We Th Fr Sa
1 2 3 4 5 6 7
8 9 10 11 12 13 14
15 16 17 18 19 20 21
22 23 24 25 26 27 28
29 30          
December 2026
Su Mo Tu We Th Fr Sa
    1 2 3 4 5
6 7 8 9 10 11 12
13 14 15 16 17 18 19
20 21 22 23 24 25 26
27 28 29 30 31    
January 2027
Su Mo Tu We Th Fr Sa
          1 2
3 4 5 6 7 8 9
10 11 12 13 14 15 16
17 18 19 20 21 22 23
24 25 26 27 28 29 30
31            
February 2027
Su Mo Tu We Th Fr Sa
  1 2 3 4 5 6
7 8 9 10 11 12 13
14 15 16 17 18 19 20
21 22 23 24 25 26 27
28            
March 2027
Su Mo Tu We Th Fr Sa
  1 2 3 4 5 6
7 8 9 10 11 12 13
14 15 16 17 18 19 20
21 22 23 24 25 26 27
28 29 30 31      
April 2027
Su Mo Tu We Th Fr Sa
        1 2 3
4 5 6 7 8 9 10
11 12 13 14 15 16 17
18 19 20 21 22 23 24
25 26 27 28 29 30  
Swipe Swipe for Availability

Where You'll Sleep Bedding
User User
Master Bedroom
Sleeps: 2
1 King Bed

User User
Living Room
Sleeps: 2
1 Queen Sofa Sleeper

User User User
Bunk Room
Sleeps: 3
1 Queen Bed
1 Single Bed

(Single over Queen bunk bed)

User User
Guest Room
Sleeps: 2
1 King Bed

User User
Second Master Bedroom
Sleeps: 2
1 King Bed

Private patio


Amenities 56 Amenities
Amenities You'll Love
  • Hot Tub - Shared
  • King Bed
  • Laundry Dryer - Private
  • Laundry Washer - Private
  • Parking - Free Garage Private
  • Pool - Outdoor (Onsite)
  • Private Entrance
  • Self Check-In Keypad
  • Shuttle Bus to Ski Lift
Building Features
  • BBQ Grill -Shared
  • Game Room
  • Parking - Free Outside
  • Pool Table
Essentials
  • Bed Linens
  • Carbon Monoxide Alarm
  • Extra Pillows & Blankets
  • Hangers
  • Heating
  • Shampoo
  • Smoke Alarm
  • Towels
  • WiFi - Free
Kitchen & Cooking
  • Coffee Maker
  • Cooking Basics
  • Dishes and Utensils
  • Dishwasher
  • Granite Countertops
  • Ice Maker
  • Kitchen or Kitchenette
  • Microwave
  • Oven
  • Pancake Griddle
  • Refrigerator
  • Stainless Appliances
  • Toaster
Property Features
  • BBQ Grill - Private
  • Cable or Satellite TV
  • Ceiling Fans
  • Deck - Ground Level Patio
  • Deck - Upper Level Balcony
  • Dining Area
  • Fans
  • Fireplace - Gas
  • Hair Dryer
  • Home Office - Desk - Laptop Friendly
  • Home Theater
  • Humidifier
  • In-Room Safe
  • Ironing Supplies
  • Jetted Tub
  • Kids Room
  • Stereo System or Speakers
  • View - Forest
  • View - Mountain Range
  • Walk-In Shower
Things To Be Aware Of
  • NO AIR CONDITIONING

Building Info
Settlers Creek Townhomes are one of Keystone's most sought after Colorado vacation lodging neighborhoods. Located only a mile East of Keystone Resort, you will enjoy the secluded, yet convenient, location. Many surrounding outdoor activities await you. The centrally located clubhouse, Minnie’s Cabin, features an outdoor heated pool and two hot tubs - a popular site for visitors and residents to gather. Explore the nearby Snake River. Discover the many hiking and biking trails around the East Keystone area. This is one of the newest and most modern developments in Keystone!

Reviews Rating 4.6 (23) Reviews
Rating 5
This house was perfect for my family! The house was stocked with everything we needed and more! The location was perfect! Summit Cove is a perfect location! The pool, jacuzzis, and the woods beside the house wad super awesome! Every one absolutely loved it!!
Leigh W - Stay: 5 months ago
Thank you for this glowing review Leigh! We are always happy to see the word "perfect" in a review. We are thrilled you had such a wonderful time with your family, and we hope to see you again soon! ~ SummitCove Lodging
SummitCove Vacation Lodging staff
Posted: 5 months ago
Rating 5
A great time in a great property!
Wonderful. Beautiful and well-appointed unit.
Mark S from Highlands Ranch, CO - Stay: 1 year ago
Thank you for your kind review, Mark! We're thrilled you found the unit beautiful and well-appointed. We hope to welcome you back for another wonderful stay soon! ~SummitCove Lodging
SummitCove Vacation Lodging staff
Posted: 1 year ago
Rating 5
Beautiful and comfy!
We loved staying in this unit! It is beautiful and comfortable.
Mary L from Shawano, WI - Stay: 2 years ago
We are happy you enjoyed your stay with us, Mary!
SummitCove Vacation Lodging staff
Posted: 1 year ago
Rating 5
The property was awesome!
House was awesome, we had a great time! The property was awesome! Love the location and the layout! Especially the kitchen. It was very nice and renovated.
Ashley D from Pilot Point, TX - Stay: 3 years ago
Rating 5
Great Location and Plenty of Space
This condo was perfect for 4 adults and 4 kids. Plenty of parking and space to store gear. Right next to the bus stop was to catch the shuttle to the slopes. There were a few minor issues that maintenance quickly resolved. Kitchen is very well stocked but could use a couple of oven mitts. Would stay here again.
Anonymous U from Signal Mountain - Stay: 3 years ago
Rating 5
A gem that needs a little buff
We stayed here in 2020 and loved the location of this house as well as the cozy, yet bright and functional, living areas.What was cozy in 2020 became overcrowded and less manageable in 2022. We experienced numerous issues with old, poorly functioning appliances and a little too much end of ski season dust and debris. Summit Cove was incredibly responsive though - remediating as many problems as they could and reaching out to the home owners who were also responsive to our concerns and plan to address them with upgrades and improvements. In good faith we are renting this house again next ski season because it was and should continue to be a gem.
Anonymous U from Durham, NC - Stay: 4 years ago
Rating 4
We really like the Settler’s Creek condos and the area
We really like the Settler’s Creek condos and the area
Darcy from Colorado Springs, CO - Stay: 4 years ago
Rating 5

Terrific! Nice property, and everything was handled very professionally.

Michael M from San Jose, CA - Stay: 4 years ago
Rating 5

The townhomes in Settler's Creek were a perfect location. We loved the privacy and "in the woods" feeling while still being relatively to close to dining and many recreation options.

Andrew B from West Lafayette, IN - Posted: 5 years ago
Rating 4
July 2020

It was great. A couple of the TVs did not work though.

Patrick H from Highlands Ranch, CO - Stay: 5 years ago

Sorry to hear the TVs were giving you trouble. In the future you can always give us a call and we can send maintenance to get it fixed for you. - SummitCove

SummitCove Vacation Lodging staff
Posted: 5 years ago
Rating 4
June-July 2020

The SummitCove side of our stay was excellent. Good communication before, during and after. Additionally, the gentlemen assigned to help us with the internet issues (Tim) was exceptional.

Jinny M from Carver, MN - Stay: 5 years ago
Rating 4
Another Great Review from VRBO

Worked well for the 10 of us including 5 grandkids. Bus stop across the street. Extremely convenient for our group.


David - Posted: 6 years ago
Rating 4
Another Great Review from VRBO

This unit is fabulous. There are great views of the mountains from 3 of 4 sides of this unit. The leasing folks are very accommodating. Great location and shuttle stops right out front.


Richard - Posted: 6 years ago
Rating 4
Another Great Review from VRBO

We had a wonderful stay on our family ski trip. This town home was located right across the street from the shuttle stop. The space was great for us and our 5 adult children. The kitchen was well stocked which made cooking meals easy to accomplish. The unit was super clean. The pillows and beds were comfortable. There were also humidifiers available. We would definitely stay here again.


Virginia - Posted: 6 years ago
Rating 5
Another Great Review from VRBO

The condo was nice & in a perfect spot right at the bus stop. Kelly @ Summit was great & helpful! We will go back!


Jennifer - Posted: 6 years ago
Rating 4
Great Rental Review from AirBnB
Clean , loved the lay out great for couples ! Quite area with beautiful views ! Would stay here again.
 
Shira from Parker, CO - Posted: 6 years ago
Rating 4
The management office was excellent. The property was smaller than represented.
Deborah E - Posted: 6 years ago
Rating 5
Wonderful home! Always a pleasure dealing with summitcove!!!!
Daniel B - Posted: 6 years ago
Rating 5
Great as always!
We enjoy Settlers Creek every year. Great getaway and wonderful location.
Steve B - Posted: 6 years ago
Rating 5
Great Settlers Creek Condo
Great condo, clean, and such a well stocked kitchen!!!! We typically like to stay at a ski in/out location and were very impressed with the shuttle system to and from the Mountain - quick , easy , and reliable service!
Mark B - Posted: 6 years ago
Rating 5
Perfect Stay
We had the most perfect stay. Amazing location.... loved being so close to the mountain with scheduled shuttle pickups to and from the slopes! Hardly even had to get in the car! The hot tub was a great wind down after a long day on the slopes. Hope to book here again on our next trip!
Brett H - Posted: 6 years ago
Rating 4
Perfect Family Getaway!
We had 3 families together for a long weekend. Everyone slept comfortably and the shuttle to River Run stopped right in front of our house making it crazy convenient to get all of our littles to & from the mountain! Cozy place to take respite from a day full of activity. We had everything we needed to cook from home and enjoy meals together at the house. Fantastic trip!
Claire H - Posted: 6 years ago
Rating 5
A Colorado Hallmark Christmas!
Our stay at Settlers Creek was fantastic! The Express Shuttle to the gondola stopped right in front of our townhome, which was so convenient to hit the slopes! The location to River Run was super, and the actual townhome itself was everything it said it was online. Also, the personnel assisting us during our stay were informative and friendly! We had a family vacay with nine of us, and we all thought it was a perfect Christmas in Keystone! We'll definitely be back!
Debbie M - Posted: 6 years ago
Swipe Swipe for More Reviews

Have a question? Customer Questions & Answers Have a question? Customer Questions & Answers

Want to know specifics? Ask anything about this specific property that you would like to know...

Example: "Is the balcony screened in?" or "Is there a toaster oven?"

What time is check in and check out? Thank you.
Anonymous U - Posted: 09/15/2024

Answer:

Our standard check-in time is 4pm and check-out time is 10am.  Depending on availability, there may be options for paid early check-in or late check-outs. 



Request More Info Request More Info

Want to know specifics? Ask anything in reference to vacationing at this property that you would like to know...

Example: "Are fresh linens provided?"

I agree