Condo - Rating 4.9 (38)

Timbers 3058


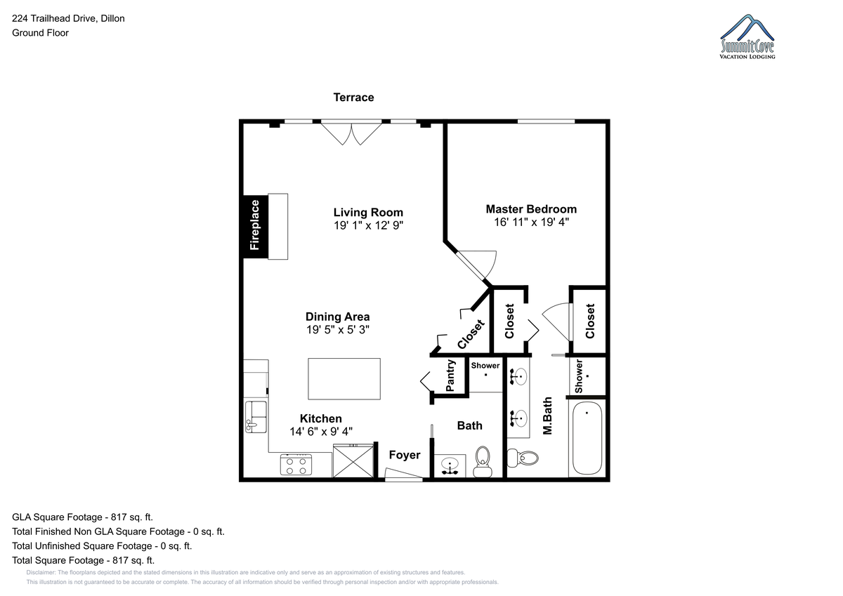
Bedroom 1 bedroom
Bathroom 2 baths
Guests 4 guests
Number of Floors inside Property: Number of Floors Inside Property: 1
Floor in Building 1st Floor of Building
Pets Not Allowed Pets Not Allowed
No Smoking No Smoking

Description Description
On Slope Serenity: 1BR/2BA Ski-In/Ski-Out Heart of Keystone

Why You'll Love it:
- Rare ski-in/ski-out 1br/2ba with King bed
- Private in-unit Laundry
- Heated indoor/outdoor pool and hot tub
- Free heated garage & ski lockers
- Short walk to bars, shops, and restaurants in River Run Village
- Murphy bed for additional sleeping space

Experience the epitome of comfort and style at our exquisitely furnished condo nestled in the picturesque River Run Village in Keystone, Colorado. This ski-in, ski-out, one-bedroom, two-bathroom treasure is the ideal getaway for those seeking the serenity of mountain living coupled with the convenience of modern amenities. Our guests marvel at the condo's elegant mountain lodge aesthetic, where warm, rich hues are paired perfectly with charming wood finishes and tasteful decor.

A stay here means savoring the impressive alpine views showcased through floor-to-ceiling windows that flood the interiors with natural light. The living room, complete with plush seating and a gas fireplace, invites guests to unwind after an exhilarating day on the slopes. For the culinary inclined, the kitchen comes fully equipped with stainless steel appliances and sleek granite countertops, providing the perfect stage to craft delightful home-cooked meals.

Stepping outside onto the spacious balcony, you'll be greeted by panoramic views of the tranquil landscape that defines Colorado's high country. It's an idyllic spot to start you- Muphy bed for extra sleepingr day with a steaming cup of coffee or to end your evening with a glass of wine under the starry night sky. The condo's location is a treat for the adventurous at heart. Just a short stroll from your doorstep, you'll find an array of local shops, eateries, and recreational spots, ensuring you're always within reach of the action.

For winter sports enthusiasts, the proximity to world-class ski slopes is a dream come true. The condo's prime location in River Run Village places you mere steps from the gondolas leading to Keystone Resort, allowing for quick and easy access to the snowy peaks. Whether you're an experienced skier or trying your hand at snowboarding for the first time, you'll love the convenience of being in a ski-in, ski-out location. With its unbeatable location and enchanting charm, our condo is the perfect choice for your next mountain escape. Come experience the magic of Keystone for yourself.

This condo comes with 1 parking permit for the underground parking garage. Parking is unassigned.

Location Location

Availability Calendar Availability Calendar
1 Available
1 Unavailable
May 2026
Su Mo Tu We Th Fr Sa
          1 2
3 4 5 6 7 8 9
10 11 12 13 14 15 16
17 18 19 20 21 22 23
24 25 26 27 28 29 30
31            
June 2026
Su Mo Tu We Th Fr Sa
  1 2 3 4 5 6
7 8 9 10 11 12 13
14 15 16 17 18 19 20
21 22 23 24 25 26 27
28 29 30        
July 2026
Su Mo Tu We Th Fr Sa
      1 2 3 4
5 6 7 8 9 10 11
12 13 14 15 16 17 18
19 20 21 22 23 24 25
26 27 28 29 30 31  
August 2026
Su Mo Tu We Th Fr Sa
            1
2 3 4 5 6 7 8
9 10 11 12 13 14 15
16 17 18 19 20 21 22
23 24 25 26 27 28 29
30 31          
September 2026
Su Mo Tu We Th Fr Sa
    1 2 3 4 5
6 7 8 9 10 11 12
13 14 15 16 17 18 19
20 21 22 23 24 25 26
27 28 29 30      
October 2026
Su Mo Tu We Th Fr Sa
        1 2 3
4 5 6 7 8 9 10
11 12 13 14 15 16 17
18 19 20 21 22 23 24
25 26 27 28 29 30 31
November 2026
Su Mo Tu We Th Fr Sa
1 2 3 4 5 6 7
8 9 10 11 12 13 14
15 16 17 18 19 20 21
22 23 24 25 26 27 28
29 30          
December 2026
Su Mo Tu We Th Fr Sa
    1 2 3 4 5
6 7 8 9 10 11 12
13 14 15 16 17 18 19
20 21 22 23 24 25 26
27 28 29 30 31    
January 2027
Su Mo Tu We Th Fr Sa
          1 2
3 4 5 6 7 8 9
10 11 12 13 14 15 16
17 18 19 20 21 22 23
24 25 26 27 28 29 30
31            
February 2027
Su Mo Tu We Th Fr Sa
  1 2 3 4 5 6
7 8 9 10 11 12 13
14 15 16 17 18 19 20
21 22 23 24 25 26 27
28            
March 2027
Su Mo Tu We Th Fr Sa
  1 2 3 4 5 6
7 8 9 10 11 12 13
14 15 16 17 18 19 20
21 22 23 24 25 26 27
28 29 30 31      
April 2027
Su Mo Tu We Th Fr Sa
        1 2 3
4 5 6 7 8 9 10
11 12 13 14 15 16 17
18 19 20 21 22 23 24
25 26 27 28 29 30  
Swipe Swipe for Availability

Where You'll Sleep Bedding
User User
Master Bedroom
Sleeps: 2
1 King Bed

Attached Bathroom

User User
Living room
Sleeps: 2
1 Full Murphy Bed


Amenities 57 Amenities
Amenities You'll Love
  • Hot Tub - Shared
  • King Bed
  • Laundry Dryer - Private
  • Laundry Washer - Private
  • Pool - Indoor (Onsite)
  • Pool - Outdoor (Onsite)
  • Ski-In / Ski-Out
Building Features
  • Access - Elevator
  • BBQ Grill -Shared
  • Fire Pit - Shared
  • Fitness Room
  • Game Room
  • Nearby Mini Golf
  • Nearby Playground
  • Parking - Free Garage Shared
  • Parking - Free Outside
  • Ski Storage
  • Steam Room
Essentials
  • Bed Linens
  • Carbon Monoxide Alarm
  • Extra Pillows & Blankets
  • Hangers
  • Heating
  • Shampoo
  • Smoke Alarm
  • Towels
  • WiFi - Free
Kitchen & Cooking
  • Blender
  • Coffee Maker
  • Cooking Basics
  • Crock Pot
  • Dishes and Utensils
  • Dishwasher
  • Granite Countertops
  • Ice Maker
  • Kitchen or Kitchenette
  • Microwave
  • Oven
  • Pancake Griddle
  • Refrigerator
  • Stainless Appliances
  • Toaster
Property Features
  • Access - No Stairs
  • Cable or Satellite TV
  • Ceiling Fans
  • Deck - Upper Level Balcony
  • Dining Area
  • Fans
  • Fire Pit - Private
  • Fireplace - Gas
  • Hair Dryer
  • Humidifier
  • Ironing Supplies
  • Jetted Tub
  • View - Forest
  • Walk-In Shower
Things To Be Aware Of
  • NO AIR CONDITIONING

Building Info
Located SLOPESIDE at the base of Keystone Ski Resort, the one word that comes to mind when describing this particular building is luxurious. The Timbers condos are the ultimate in luxury when it comes to condo buildings in River Run Village, or even just in all of Keystone. Condominium amenities include an indoor / outdoor pool, hot tub, fire pit and dining area. In addition, the Timbers is within walking distance of shopping and restaurants down across the bridge in River Run Village. A heated driveway and sidewalks allow you to stroll around the property in ease and keeps you doing what you came to Colorado to do, have some fun on vacation! You are just steps from the slopes on a powder day.

Reviews Rating 4.9 (38) Reviews
Rating 5
We had a great few days at Keystone and the condo at Timbers Lodge was perfect for our getaway. The location close to the slope and town center was exactly what we were looking for and the hot tub and sauna are just what we needed after a day on the slops. Our condo was pristine! We will definitely visit Keystone and Timbers Lodge in the future.
Jennie H - Stay: 2 months ago
We love reviews like this, Jennie! Thank you for taking the time to review TImbers 3058. It's such a great location and the amenities cannot be beat! We welcome you back any time! ~SummitCove Lodging
SummitCove Vacation Lodging staff
Posted: 2 months ago
Rating 5
Great visit!
Very good - definitely stay again!
Mitch D from Russell, KS - Stay: 1 year ago
Thank you for the nice comments, Mitch! We are happy you enjoyed your time at Timbers and we will be looking forward to your return to Keystone! ~SummitCove Lodging
SummitCove Vacation Lodging staff
Posted: 1 year ago
Rating 5
Awesome!
Great! We loved everything about our trip!
Scott F from Lumberton, TX - Stay: 1 year ago
Thank you for the nice review, Scott! We are thrilled you enjoyed your time in Keystone so much! We look forward to your next visit! ~SummitCove Lodging
SummitCove Vacation Lodging staff
Posted: 1 year ago
Rating 5
Perfection
This place was perfect for 3 guys. King, Murphy bed, and roll away in the closet. Steps from the hot tub and slopes. I would call this ski in, walk out. Quick walk to the village. 9.5/10. Will definitely be staying here again.
Anonymous U from Port Huron, MI - Stay: 2 years ago
Thank you for this wonderful review! We will look forward to your next visit!
SummitCove Vacation Lodging staff
Posted: 2 years ago
Rating 4
Great location.
Great location. Perfect for a weekend ski getaway.
Ian B from Birmingham, MI - Stay: 3 years ago
Rating 5
I enjoyed my stay
I enjoyed my stay. Steam room and hot tub were a great way to unwind after a day of skiing.
Bryan M from Hateysville, PA - Stay: 3 years ago
Rating 5
everything was dialed in perfectly.
Awesome trip, a great experience, extremely well managed and everything was dialed in perfectly.
Mark T from San Marcos, CA - Stay: 3 years ago
Rating 4
Great location
Great location. Condo needs updating.
Cathleen B from Fort Collins, CO - Stay: 3 years ago
Rating 5
Very wonderful family (albeit) short vacation. Ski in ski out!
Very easy check-in. Very quick response by customer service when I did have a question. Modern and beautiful accommodations. Fully appointed kitchen; quality toiletries. Cozy and warm apartment; easy to adjust temp. Lovely lobby; the coffee available was nice. Hottub; sauna; and fitness area were clean and lovely. Very wonderful family (albeit) short vacation. Ski in ski out!
Maria F from Fort Collins, CO - Stay: 3 years ago
Rating 5
Overall the stay was good
Good. The Timbers is nice. The view from this unit is a bit lacking with a parking spot literally in front of the deck. The street also was surprisingly busy. Overall the stay was good though
Lorne T from Aurora CO - Stay: 3 years ago
Rating 4
Its very nice
Its very nice, both the building and the apartment.
James O from Morton Grove, IL - Stay: 4 years ago
Rating 5
Easy check-in / check-out process.
Great property that is very convenient to the slopes. Easy check-in / check-out process.Overall a great trip.
David W from Dallas, TX - Stay: 4 years ago
Rating 5
The condo was great as usual.
The condo was great as usual. The weather was very cold and frequently overcast but you get what you get for the weather.
Allan A from Los Alamos, NM - Stay: 4 years ago
Rating 5
Experience was great!
Experience was great. Unit 3058 was well appointed.
Jandy T from Breaux Bridge, LA - Stay: 4 years ago
Rating 5
Had a great 6 nights.
Had a great 6 nights. Only skied 3 of a possible 5 days as my knees were a bit sore (I’m getting a bid old unfortunately).
Allan A from Los Alamos, NM - Stay: 4 years ago
Rating 5
Lone Eagle and Timbers are two of the nicest properties in Keystone
We spent a week at Timbers 3058 and absolutely loved it! The lobby was beautiful, especially with the Christmas decor. Ski-in access was awesome even with a very short walk and particularly with the 3058 unit being closest to the elevator and the door to the slopes. Lone Eagle and Timbers are two of the nicest properties in Keystone and the only two with ski-in/out access. Will definitely stay here again.
Lindsay J from San Anglo, TX - Stay: 4 years ago
Rating 5
One of the best condos in keystone
I have stayed at a few places in Keystone and while they have all been great, Timbers 3058 was fantastic! The spacious lobby was beautifully decorated for the holidays and had coffee and hot cocoa. This particular unit is right off the elevator and the exterior door to the slopes for even more convenience. It was a great Christmas vacation for my family of 5. My teen boys loved the ski/in ski/out. While you do have to walk 40-50 yards, they parked their skis close to the slopes and walked to the condo. Having two bathrooms was great and the kitchen was spacious and fully equipped. We loved it and will continue to use Summit Cove!
Anonymous U - Stay: 4 years ago
Rating 5

Awesome! It was very quiet which was what we needed. And the communication from your staff was friendly!

Sloan R from US - Stay: 4 years ago
Rating 5

Saw a black bear on the last day. It was in our garage!

Diana A from Lees Summit, CA - Posted: 4 years ago
Rating 5

Great!

Christy L from US - Stay: 4 years ago
Rating 5

It was a very relaxing stay in keystone. Lots of snow

Jamie W from Fort Myers, FL - Stay: 5 years ago
Rating 5

We enjoyed the room we stayed in this past week. Everything was as expected from the detailed information provided by Summit Cove. This is the third different unit we have stayed in and there have never been any unpleasant surprises. We plan on returning to this unit again and again. Awesome location and facilities!

Jodie S from Ava, MO - Stay: 5 years ago
Rating 5

Perfect Location! Beautiful, efficient, condo.

Mike R from Elgin, IL - Stay: 5 years ago
Rating 5

Love Keystone and Condo was super nice!

Scott B from Ogden, UT - Stay: 5 years ago
Rating 5
Beautiful and efficient, Location Location Location!
I come to Keystone 4-5 times a year and have stayed everywhere in River Run. Timbers and Lone Eagle are hands down the best places to stay as far as ability to walk out your door and ski. No walk. But this condo specifically in Timbers is in the perfect location for that building. 1st floor. Right next to elevator. Right next to exterior door to come in from skiing. Closer than the locker room. You can park right outside your porch and hand things in/out if needed. Literally the shortest walk in the building to/from the slopes. The inside of the condo is great! The shower in the 2nd bathroom allows for people "living" in the family room to have a shower. With the king, murphy bed, pull out couch, and a roll away cot in the closet, you could sleep 6-7! Murphy bed was very comfortable. Everything worked. Murphy bed right next to door/windows was not a problem at all and it was 5 degrees over night. Didn't even need the fireplace on. Can't say enough about this condo. Great condition, and super efficient for getting the most out of the space. And you are literally 20-30 steps from putting your skis on. Enjoy!
Anonymous U - Stay: 5 years ago
Rating 4
March 2020

It was good. Check in staff was friendly. Thanks for always having a great staff at Summit Cove!!!!! We appreciate you all!

Jennifer H from Watkinsville, GA - Stay: 6 years ago
Rating 5
February 2020

Everything was just perfect!!!

Hung N from Richmond, TX - Stay: 6 years ago
Rating 5

Good. Summit Cove staff was excellent.

January 2020

Sheri S - Stay: 6 years ago
Rating 5

The property was superb. The check in and out easy.. it was a great stay!

January 2020

Brad S from Tampa, FL - Stay: 6 years ago
Rating 5
Another Great Review from VRBO

Ok- this is the best place to stay. Can't wait for the snow to fly! We stayed here over Labor Day weekend. We hiked all 3 days on trails, Lilly Pad Lake, Mt. Royal, then took the Gondola up and hiked down. Had dinner at the Snake River Saloon, it was amazing! Octoberfest in Keystone was really cool. Super nice Condo.


Tom - Posted: 6 years ago
Rating 5
Another Great Review from HomeAway

Very comfortable. Feels more like home than some of the other buildings in River Run. Nice kitchen. It’s a short walk across the bridge to River Run. Amenities were good— we used the hot sub and sauna. The ski locker was easy to access. The king bed was very comfortable. Back door lock is a little tricky.


jenny - Posted: 6 years ago
Rating 5
timbers 2058
everything was nice ...stayed in the same condo as last year.
Jeffrey B - Posted: 6 years ago
Rating 5
FANTASTIC
My family and I stayed a week in Keystone's ski in/out condo called Timbers. It was fantastic. The condo is gorgeous and modern with full kitchen, washer/dryer, dishwasher, stove, etc... The Timbers Condo is immediately adjacent to the ski lift and it is incredibly convenient. I cannot say enough how awesome this place is and how clean and comfortable.
Alex Z - Posted: 6 years ago
Rating 5
Review of Timbers 3058 in Keystone
Enjoyed our stay. Complex was very nice. Our unit was very nice. Great trip
Damon M - Posted: 6 years ago
Rating 5
Timbers 3058 = nice 1 bedroom condo.
Very nice 1 bedroom condo slept 4 of us easily with Murphy bed and rolling folding bed. Good 1st floor location close to pool / hot tub. There are fewer condo units in the Timbers than other rental properties so pool / hot tub / elevator are not overly crowded compared to other properties we have rented.
James P - Posted: 6 years ago
Rating 5
Another great stay
This is our fourth stay at this condo. It’s very nice and comfortable. We’ve used Summit Cove for years as well, as they make it easy. Great Stay. We recommend both the condo and Summit Cove.
John A - Posted: 6 years ago
Rating 5
This was a last minute booking, but the staff were super efficient and easy to work with! The location, ski in / ski out, was a good draw and the amenities were great. The hot tub was small, but there weren't too many people using it when we were there anyway. Will stay here again!
Stefanie S - Posted: 6 years ago
Rating 5
Easy!
Ski in, ski out location is great. Ski storage and cozy lobby was a plus. Text check-in time makes it super easy to pick up keys. All great.
Steve W - Posted: 6 years ago
Swipe Swipe for More Reviews

Have a question? Customer Questions & Answers Have a question? Customer Questions & Answers

Want to know specifics? Ask anything about this specific property that you would like to know...

Example: "Is the balcony screened in?" or "Is there a toaster oven?"



Request More Info Request More Info

Want to know specifics? Ask anything in reference to vacationing at this property that you would like to know...

Example: "Are fresh linens provided?"

I agree