Condo - Rating 4.9 (15)

Pines 2045


Bedroom 3 bedrooms
Bathroom 2 baths
Bathroom 1 Half bath
Guests 8 guests
Number of Floors inside Property: Number of Floors Inside Property: 2
Floor in Building 2nd Floor of Building
Pets Not Allowed Pets Not Allowed
No Smoking No Smoking

Description Description
Escape to the mountains and experience the breathtaking beauty of Keystone, Colorado in the comfort of Pines Condo 2045! This luxurious condo is located in West Keystone, just minutes from the ski slopes and all the outdoor adventure you crave.

Why You'll Love This Condo for Your Keystone Homebase
- Quiet, Upper Floor, Corner End Unit
- Large Picture Windows, Spacious Balcony and Amazing Views!
- Close to the Free Keystone Resort Shuttle Stop
- Snake River and Paved Bike Path Just Steps Away
- Access to the Heated Indoor Pool and Hot Tub

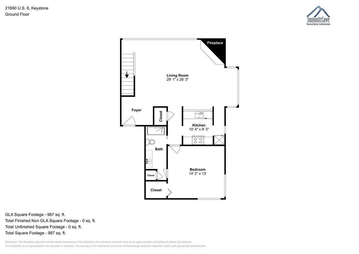
As you enter the condo, you'll be greeted by a welcoming foyer and a bright, inviting living room. Large windows let in plenty of natural light and offer stunning views of the surrounding mountains. Cozy up by the fireplace and relax on plush seating while you watch TV or catch up with loved ones.

The roomy, fully-equipped and well-stocked kitchen is perfect for preparing delicious meals and snacks. With plenty of counter space and modern appliances, cooking and entertaining will be a breeze. A dining table with ample seating stands nearby, making mealtime a comfortable and enjoyable experience.

This three-bedroom, three-bath condo is perfect for families or groups of friends. Each bedroom is beautifully decorated and thoughtfully designed for your comfort. With plenty of closet space, you'll have ample room to store your belongings. The bathrooms are immaculate and boast modern fixtures and toiletries.

Whether you're visiting Keystone for the skiing or simply to unwind in the tranquil mountain air, Pines Condo 2045 is the perfect place to call home. Just a quick ride to the ski slopes, you'll be able to hit the powder with ease. After a long day on the mountain, soak in the shared hot tub and take in the stunning views of the Rockies. The Pines is the first stop on the free shuttle route to the mountain, meaning it's easy to get a seat!

In the summer, Keystone is the ideal destination for outdoor adventure. From hiking and mountain biking to fishing and golfing, there's something for everyone. Take a scenic gondola ride to the top of the mountain and enjoy the incredible views, or explore the nearby rivers and lakes. The possibilities are endless! Pack your larn chairs and a charcuterie board to enjoy a picnic on the rivers edge or bring your bike and enjoy a scenic ride to Dillon and beyond!

When you're ready to relax, head back to the condo and enjoy all the amenities it has to offer. With plenty of space to spread out and unwind, you'll feel at home in no time. So what are you waiting for? Book your dream vacation at Pines Condo 2045 today and start planning your Keystone adventure!

This property comes with one complimentary parking permit, parking outside, unassigned.

Location Location

Where You'll Sleep Bedding
User User
Master Bedroom
Sleeps: 2
1 King Bed

Attached Bathroom

User User
Living Room
Sleeps: 2
1 Queen Sofa Sleeper

User User
Guest Bedroom
Sleeps: 2
1 Queen Bed

Shutters open to the living room below

User User
Loft Bedroom
Sleeps: 2
2 Full Sofa Sleeper


Amenities 43 Amenities
Amenities You'll Love
  • Hot Tub - Shared
  • King Bed
  • Pool - Indoor (Onsite)
  • Shuttle Bus to Ski Lift
Building Features
  • BBQ Grill -Shared
  • Laundry - Shared
  • Parking - Free Outside
  • Sauna - Shared
  • Ski Storage
Essentials
  • Bed Linens
  • Carbon Monoxide Alarm
  • Extra Pillows & Blankets
  • Hangers
  • Heating
  • Smoke Alarm
  • Towels
  • WiFi - Free
Kitchen & Cooking
  • Blender
  • Coffee Maker
  • Cooking Basics
  • Dishes and Utensils
  • Dishwasher
  • Granite Countertops
  • Ice Maker
  • Kitchen or Kitchenette
  • Microwave
  • Oven
  • Pancake Griddle
  • Refrigerator
  • Stainless Appliances
  • Toaster
Property Features
  • Cable or Satellite TV
  • Deck - Upper Level Balcony
  • Dining Area
  • Fans
  • Fireplace - Wood Burning
  • Hair Dryer
  • Humidifier
  • Ironing Supplies
  • View - Courtyard
  • View - Forest
  • View - Mountain Range
Things To Be Aware Of
  • NO AIR CONDITIONING

Building Info
The Pines condos are situated right at the East end of the River Course at Keystone, one of Keystone’s two award winning golf courses. With easy access to golf, skiing, the Snake River, horseback riding, and bike trails/paths, nestled among mature tall pine trees, this Keystone condo complex has no shortage of million dollar views. It’s an easy walk up to Keystone Lake for dining and other activities, and central to Keystone restaurants, shops and entertainment. Nearby bike trails lead down the hill to the Keystone golf courses, Lake Dillon, Frisco, Breckenridge and even as far as Vail and Minturn. *The Pines now requires a 7-night stay block with a Friday change over day, special weekly and monthly rates.*

Reviews Rating 4.9 (15) Reviews
Rating 5
So Cozy!!
Absolutely loved this place. Great location, beautiful view, clean, and plenty of room. This condo had everything you need. The facilities were great, and the bus pick for the skiing was a short walk. Can’t wait to go back. By the way, the staff at Summit Cove are awesome!
Anonymous U from Tampa - Stay: 1 year ago
Thank you so much for your fantastic review! We’re thrilled to hear that you loved the condo and its location, and that you found it to be clean, spacious, and well-equipped. It's great to know the bus pick-up for skiing was so convenient, and that the facilities added to your experience. We’re especially happy you had a positive interaction with the Summit Cove team – we’ll be sure to pass along your kind words! We can’t wait to welcome you back for another wonderful stay! ~SummitCove Lodging
SummitCove Vacation Lodging staff
Posted: 1 year ago
Rating 5
Wonderful time!
Everything was so perfect. I experienced the best trip. This trip was the best of the accommodations I stayed in.
Jae L from Arlington, TX - Stay: 1 year ago
Thank you for the sweet review, Jae! We are so glad you had such a great time and enjoyed the property so much! We look forward to your next visit to Keystone! ~SummitCove Lodging
SummitCove Vacation Lodging staff
Posted: 1 year ago
Rating 5
We love staying here!
Our stay was amazing! I love this condo!
Emily G from Lincoln, NE - Stay: 1 year ago
Emily thank you for the nice review and for returning once again to Pines 2045! We love that you enjoy staying here and we will always welcome you back! ~SummitCove Lodging
SummitCove Vacation Lodging staff
Posted: 1 year ago
Rating 5
We had the best time! ~ AirBnB Review
The photos really don’t do justice. The place is amazing inside. The views are breathtaking. Snow covered mountains out of the main floor windows. The kitchen is incredibly well stocked with pans, tools, spices. The beds were comfy. The WiFi was great for two people on zoom calls. The downstairs ski cabinet was handy. We would LOVE to stay here again. Amazing value. One little weird thing, both upstairs bedrooms have Juliet windows to the main living room, which isn’t awesome for light sleepers with night owls. Wasn’t a problem for us as everyone was tired at night. The shuttle to Keystone was east and frequent. Just pay attention to parking. If you have two cars, the second car has to pay $25 a night and the parking is faaaaar away. Highly recommend the spa at Keystone lodge and spa. Indoor/outdoor hot tube, indoor / outdoor swimming pool. Steam sauna. Dry sauna. And gym access. All day pass for $30. For local fare, The Goat bar was fun with a pool table.
Shannon L - Stay: 2 years ago
Thank you so much for this wonderful review Shannon! We are thrilled that you enjoyed your stay with us and we appreciate the feedback. The Pines is a favorite of guests! It was great hosting you and we hope to see you again soon! ~ SummitCove Lodging
SummitCove Vacation Lodging staff
Posted: 1 year ago
Rating 5
Very nice unit ~ Home Away/VRBO Review
This is a very comfortable, recently renovated condo with perfect accommodations for our family.
Myron G - Stay: 1 year ago
Thank you for the positive review of our property Myron! We are delighted to hear that your family found the accommodations comfortable and well-suited to your needs. We enjoyed hosting you and we look forward to welcoming you back in the future. ~ SummitCove Lodging
SummitCove Vacation Lodging staff
Posted: 1 year ago
Rating 5
Great as usual!!
Great as usual!!
Angela A from Hutcheins, TX - Stay: 2 years ago
Rating 5
It was great
It was great - Everything was better than anticipated! just too short!
David C from Aurora, CO - Stay: 3 years ago
Rating 5

Absolutely fantastic!! We had family who live in Denver and drive frequently in winter to ski in keystone, met us and had dinner. They fell in love and have rented the property. Just such a warm and inviting home!

Jenise G from Cheswick, PA - Stay: 4 years ago
Rating 5

Absolutely fantastic! I didn't want to leave!

Barbara C from US - Stay: 4 years ago
Rating 5

Beautiful and spacious condo with access to shuttle to keystone right outside.

Sebastien S - Stay: 5 years ago
Rating 5
February 2020

Great!

Nathan L from Denver, CO - Stay: 6 years ago
Rating 5

 Fantastic! The condo was a perfect space for our family!

February 2020

Claire L from Houston, TX - Stay: 6 years ago
Rating 4
Another Great Review from VRBO

Nicely set up kitchen, nice fireplace, brand new grill, bathrooms require update, comfortable beds . Overall pleased with the property


Leon - Posted: 6 years ago
Rating 5
Great Place in Keystone
Highly recommend this Pines unit! Located close to all the best places.
John K - Posted: 6 years ago
Rating 5
can't see the best part!
We love the new soundbar and woofer we put in with the new TV! Sounds great!
Wendell S - Posted: 6 years ago
Swipe Swipe for More Reviews

Have a question? Customer Questions & Answers Have a question? Customer Questions & Answers

Want to know specifics? Ask anything about this specific property that you would like to know...

Example: "Is the balcony screened in?" or "Is there a toaster oven?"



Request More Info Request More Info

Want to know specifics? Ask anything in reference to vacationing at this property that you would like to know...

Example: "Are fresh linens provided?"

I agree